Casa dei mestieri in Guatemala
E' da poco cominciata l'attività
didattica all'interno della “casa dei ,mestieri”, in Guatemala.
Completato a febbraio scorsa, l'edificio scolastico sorge
all'interno di una piccola comunità, Cerro la Granadilla, situata a
50 km dalla capitale guatemalteca.
La piccola scuola è stata costruita da
un gruppo di studenti e professionisti volontari insieme a
lavoratori locali sotto la guida del team C.A.S.A. (Central American
Sustainable Architecture), gruppo di lavoro di cui fa parte AK0 e lo
studio Mezzosangue.
L'obiettivo è stato quello di dotare
il villaggio di una scuola di formazione, ecologica e realizzata in
autocostruzione, che potesse offrire ai ragazzi della comunità
un'opportunità di lavoro, valida alternativa alla realizzazione di
fuochi di artificio, attività locale estremamente pericolosa che
vede continuamente il coinvolgimento di giovani e giovanissimi.
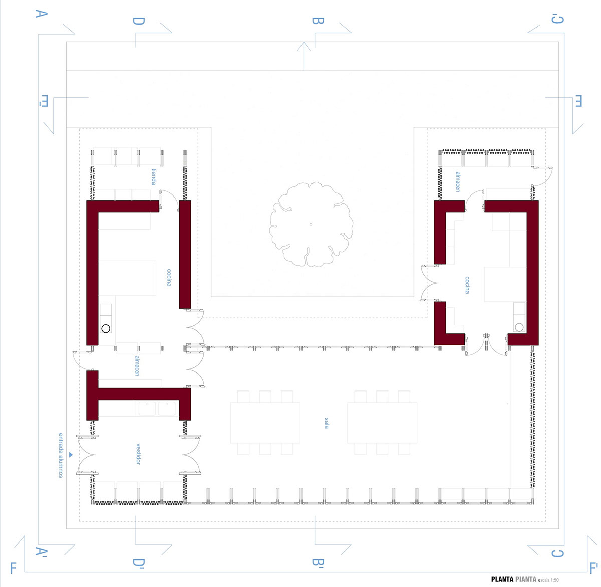
La struttura è costituita da un'aula
grande flessibile, permeabile, una sorta di porticato coperto che
funge da spazio filtro tra l'esterno, un cortile che si apre verso il
villaggio, ed una cucina, un'area più chiusa, intima, realizzata in
pisé ed inglobata dalla più ampia struttura lignea dell'aula. I
materiali utilizzati, legno, terra cruda ed il bambù per le
finiture, sono stati reperiti localmente.
La tipologia dell'architettura richiama
l'organizzazione spaziale tipica degli edifici locali: una serie di
organismi che gravitano attorno ad uno spazio aperto centrale con il
quale sono in relazione attraverso una zona porticata. La cucina è
stata realizzata in terra cruda, battuta su di un basamento di pietra
che protegge la struttura dall'umidità di risalita del terreno. Il
grande spessore murario regola il regime igrometrico e la temperatura
grazie alla sua inerzia termica, garantendo il benessere climatico
interno.
La grande aula porticata può essere diversamente protetta
dai raggi solari attraverso l'apertura dei pannelli a soffietto di
bambù, che inoltre regolano il grado di relazione tra interno ed
esterno.
(foto di © giulia celentano)









